Будьте в курсе!
Узнавайте обо всем первым
Новости
Все новости
26 июня 2025
Сервисный тренинг Winterhalter
27 мая 2025
Заливные льдогенераторы Cooleq - Новинка!
24 апреля 2025
Сервисный тренинг MKN
11 апреля 2025
Новые расстойки от Unox
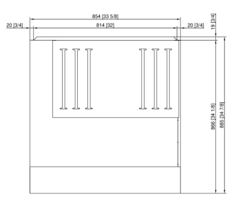
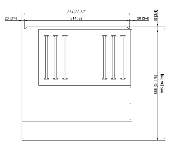
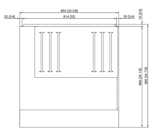
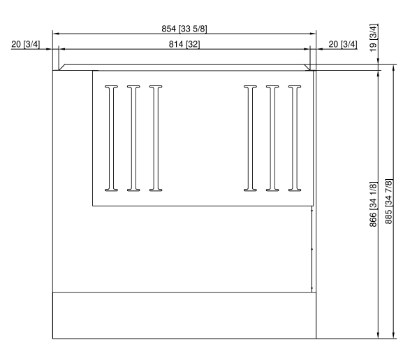
Вытяжной зонт UltraVent 6-1/1 и 10-1/1 RATIONAL 60.75.134
494 323 руб.
-
+
Ваш город:
Стоимость доставки бесплатно
- Описание
- Характеристики
- Инструкции и руководства (9)
- Отзывы
- Задать вопрос
-
NULL
-
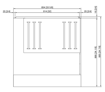
Страна Германия Напряжение, В. 220 Мощность, кВт/ч. 0,17 Воздухопроизводительность, м3/ч 705 В наличии Нет Модель 60.75.134 Серия UltraVent Длина, мм 854 Ширина, мм 885 Высота, мм. 313 Вес, кг 66 Артикул пр-ля 60.75.134 Тип установки на оборудование Материал н.сталь Вентилятор есть Количество проголосовавших 1 Сумма оценок 5 Рейтинг 3.3 -
Вы можете задать любой интересующий вас вопрос по товару или работе магазина.
Наши квалифицированные специалисты обязательно вам помогут.






























































































































































































































