Будьте в курсе!
Узнавайте обо всем первым
Новости
Все новости
26 июня 2025
Сервисный тренинг Winterhalter
27 мая 2025
Заливные льдогенераторы Cooleq - Новинка!
24 апреля 2025
Сервисный тренинг MKN
11 апреля 2025
Новые расстойки от Unox
Подставка II Пекарь флот 6-1/1 / 10-1/1 RATIONAL 60.31.211 для пароконвектоматов
178 080 руб.
-
+
Ваш город:
Стоимость доставки бесплатно
- Описание
- Характеристики
- Инструкции и руководства (9)
- Отзывы
- Задать вопрос
-
NULL
-
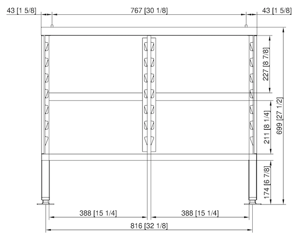
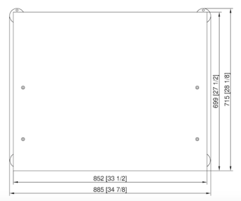
Страна Германия Кол-во уровней 14 Стандарт противней 600х400 В наличии Нет Модель 60.31.211 Серия Подставка II Длина, мм 885 Ширина, мм 715 Высота, мм. 699 Вес, кг 36,8 Артикул пр-ля 60.31.211 Тип закрытые сквозные Тип установки напольный Материал н.сталь Передвижная нет Допустимая нагрузка, кг. 600 Количество проголосовавших 1 Сумма оценок 5 Рейтинг 3.3 -
Вы можете задать любой интересующий вас вопрос по товару или работе магазина.
Наши квалифицированные специалисты обязательно вам помогут.





























































































































































































































